© ООО "Специализированный Застройщик "Финдом"

ЖК Бирюлинский парк в поселке Бирюли

Жилой комплекс Бирюлинский парк

Удачный выбор для тех, кто ценит баланс между городскими удобствами и природным окружением

О проекте

Жилой комплекс «Бирюлинский парк» расположен в экологически чистом Высокогорском районе, всего в 19 минутах езды от Казани. Жилой комплекс состоит из 4 многоквартирных домов высотой 4 этажа. Удобная транспортная доступность сочетается с преимуществами загородной жизни: 

  • просторные парковые зоны, свежий воздух и тишина;
  • озеро и огромный парк в двух шагах;
  • офис врача в 2 минутах;
  • квартиры в предчистовой отделке.

Район обладает развитой социальной инфраструктурой, при этом сохраняет камерность и спокойную атмосферу. 

Это удачный выбор для тех, кто ценит баланс между городскими удобствами и природным окружением. 

Квартиры в «Бирюлинском парке» отличаются продуманными планировками и хорошей инсоляцией благодаря малоэтажной застройке. Большие окна обеспечивают обилие естественного света, а современные отделочные материалы и надежные инженерные решения создают комфорт для жизни. 

Особенность локации — близость к природе: жилой комплекс граничит с лесопарковой зоной, а в нескольких минутах ходьбы находится ухоженный пруд, где можно отдыхать в любое время года. 

В двух минутах неспешной ходьбы расположены детский сад, школа, стадион и парк с прогулочными аллеями — идеальные условия для семей с детьми. Внутри комплекса организованы комфортные парковочные зоны, что избавляет от проблемы поиска места для машины. Инфраструктура ЖК продумана для повседневного комфорта: в шаговой доступности находятся продуктовые магазины.

Застройщик: ООО «Специализированный застройщик «ФИНДОМ» ИНН/КПП: 1683018161/168301001. Проектные декларации размещены в Единой информационной системе жилищного строительства на сайте https:// наш.дом.рф. Подробнее о данном ЖК можно узнать в офисах продаж, по телефону: +78432491222. Настоящее предложение не является публичной офертой.

ЖК Бирюлинский парк в поселке Бирюли

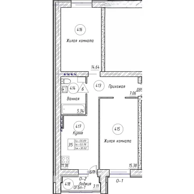
Квартиры и планировки

Жилой дом №1
Сдан
Первая очередь
квартир в продаже - 4
декабрь 2024 г.
Жилой дом №2
Сдан
третья очередь
квартир в продаже - 14
декабрь 2025 г.
Жилой дом №3
Сдан
четвертая очередь
квартир в продаже - 31
март 2026 г.
Жилой дом №4
Сдан
вторая очередь
квартир в продаже - 0
октябрь 2025 г.

Запишитесь на экскурсию 📢

Мы запустили сервис записи в офисы продаж или на объект! Теперь Вы можете узнать о нас подробнее и записаться на удобные Вам дату и время.

Отправить заявку

Новости

Ещё больше новостей в нашем Телеграм-канале

#ЖК_Бирюлинскийпарк
Каждый кирпич, каждая деталь этих домов — результат кропотливой работы нашей команды, которая трудилась над созданием пространства, где будет царить уют и счастье
#ЖК_Бирюлинскийпарк
Жилой комплекс в Бирюлях сочетает в себе комфорт современной жизни с красотой и прелестью природного массива
#ЖК_Бирюлинскийпарк
Одно- и двухкомнатные квартиры в предчистовой и чистовой отделке. Современная планировка, удобное местоположение, инфраструктура в шаговой доступности
#ЖК_Бирюлинскийпарк
Новый год начался со строительства комплекса, состоящего из четырех многоквартирных домов в поселке Бирюлинского зверосовхоза Высокогорского района

Варианты покупки квартиры

Ипотека

Мы работаем с ведущими банками и предлагаем эксклюзивные ипотечные программы с выгодными процентными ставками. Наши специалисты отправят вашу заявку в несколько банков, вам останется всего лишь выбрать наиболее удобную и выгодную для вас программу.

Рассрочка

Предлагаем рассрочку до окончания строительства. Рассрочка позволяет внести часть стоимости квартиры (минимальный первоначальный взнос не менее 80% от стоимости недвижимости), а остаток оплачивать равными частями каждый месяц.

Места рядом

Особенность локации — близость к природе, в нескольких минутах ухоженный пруд

ЖК Бирюлинский парк в поселке Бирюли

Часто задаваемые вопросы

Не нашли ответ на вопрос? 

Напишите нам в удобный мессенджер 

Как участнику долевого строительства оформить право собственности на квартиру?

После ввода здания в эксплуатацию на основании подписанного акт приёма-передачи квартиры застройщик осуществляет электронную подачу пакета в Росреестр.

Пакет документов после их регистрации приходит в электронном виде на почту собственника.

Какие документы нужны для подачи заявки на ипотеку?

Для подачи заявки на ипотеку Вам необходимо предоставить ипотечному брокеру: паспорт, СНИЛС, копию трудовой, справку 2-НДФЛ. Пакет документов может меняться в зависимости от банка. Подробнее о процедуре одобрения ипотеки Вас могут проконсультировать наши ипотечные брокеры.

С какими банками сотрудничает ваша компания? Предоставляют ли они для ваших клиентов особые условия по ипотечным ставкам?

Мы уже очень давно плотно работаем практически со всеми крупными банками. 

Конечно наши клиенты получают специальные условия при покупке квартиры!

Смогу ли я получить одобрение без справки 2НДФЛ?

Для получения одобрения Вам необходимо обратиться в наш офис продаж на консультацию, выбрать жилой комплекс, дом, квартиру. Наши специалисты подробно объяснят все условия и требования, связанные с ипотечным кредитованием, ответят на любые Ваши вопросы и отправят заявку по банкам, не выходя за пределы офиса. Как только Ваша заявка будет одобрена, мы окажем полное сопровождение на всех этапах сделки, гарантируя безопасность и легкость оформления документов.

Какие дополнительные услуги может предложить застройщик?

Отделка «под ключ». Включает поклейку обоев, напольное покрытие, установку сантехники. 

Такой вариант подходит тем, кому необходимо переехать как можно скорее и нет времени на ремонт.

Я неофициально трудоустроен в организации, смогу ли подать заявку на ипотеку?

Да, при наличии первоначального взноса не менее 50,1%.

Какие гарантии предоставляет застройщик?

Застройщик предоставляет несколько гарантий: 

  • на строительные работы — сроком от 1 до 5 лет. Покрывает прочность и долговечность конструкций, исправность инженерных систем;
  • на отделочные материалы — можно запросить сертификаты на бетон, кирпич или другие отделочные материалы.
Можно ли получить одобрение, если у супруга/супруги плохая кредитная история?

Можно. Для подробной консультации просим Вас обратиться в офис продаж.